Комплексная автоматизация и диспетчеризация инженерных систем

Заземление и молниезащита. Защита от перенапряжений (МЗ)

Получить консультацию
Работаем на всей территории России

Система молниезащиты и заземления является одной из базовых составляющих энергетической системы объекта. 

Молниезащита представляет собой комплекс технических решений, используемых для защиты объекта от прямого попадания молнии. Система молниезащиты обеспечивает безопасность людей, защиту зданий и сооружений различного назначения, технологического, инженерного и электронного оборудования объектов как от прямых ударов грозовых разрядов, так и от передачи электротока через металлоконструкции и коммуникации.

Также одной из составляющих системы молниезащиты является система защиты от перенапряжений. Перенапряжения происходят при попадании молнии в землю или в предметы и объекты, находящиеся вблизи электроустановки, а также при переключениях мощных электроприемников. Данная система защиты реализуется посредством установки устройств защиты от импульсных перенапряжений (УЗИП) различного класса в различные зоны защиты.


Молниезащита неразрывно связана с системой заземления. Заземлением называется преднамеренное электрическое соединение электроустановки или комплекса электроустановок с заземляющим устройством.

Защитные заземление — это электрическое соединение с заземляющим устройством металлических нетоковедущих частей, которые в нормальном режиме работы не находятся под напряжением, но могут оказаться под напряжением вследствие аварии. Целью защитного заземления является снижение до безопасной величины напряжения относительно земли на металлических частях оборудования, которые не находятся под напряжением, но могут оказаться под напряжением вследствие нарушения изоляции электроустановок. В результате замыкания на корпус заземленного оборудования снижается напряжение прикосновения и, следовательно, ток, проходящий через тело человека, при его прикосновении к корпусам.

Рабочее заземление, в отличие от защитного заземления, используемого исключительно в целях безопасности людей, предназначается для того, чтобы гарантировать нормальную работу электрических приборов и устройств.

Заземлителем называется проводник (электрод) или совокупность металлических соединенных между собой проводников (электродов), находящихся в соприкосновении с землей.

Глухозаземленной нейтралью называется нейтраль трансформатора или генератора, присоединенная к заземляющему устройству непосредственно или через малое сопротивление.


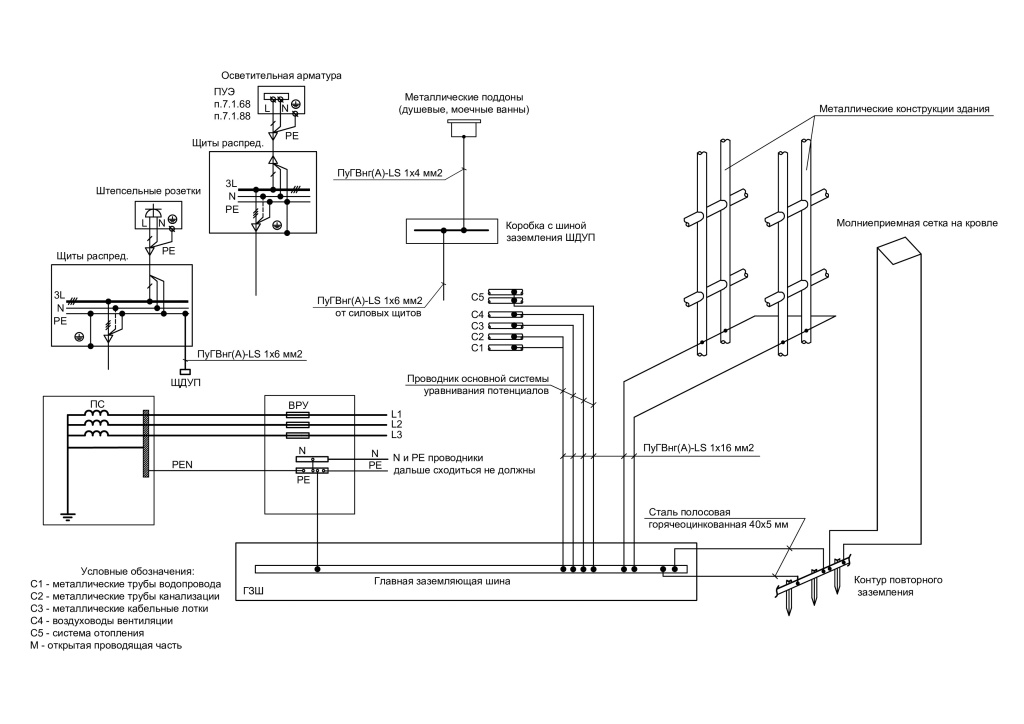
Основными компонентами системы заземления и молниезащиты зданий являются:

  • Молниеприемники

  • Токоотводы

  • Заземляющее устройство

  • Устройство защиты от импульсных перенапряжений




Ниже представлена типовая структурная схема системы молниезащиты и заземления:

Картинка 1 МЗ.jpg

Защита от перенапряжений

Импульсные перенапряжения, возникающие во время грозы, вызываются прямыми/близкими или удаленными ударами молнии. Прямые или близкие удары молнии являются ударами молнии в здание, его окружение или проводящие электрический ток коммуникации входящие в здание (например, линии электропитания низкого напряжения, телекоммуникационные линии).

Чтобы обеспечить непрерывность комплексного электроснабжения и работоспособность систем информационных технологий даже в случае прямого удара молнии, необходимо принять меры защиты электрических и электронных установок и устройств, опирающиеся на систему молниезащиты для здания. Важно рассмотреть все возможные случаи возникновения импульсных перенапряжений. Для этого применяется зонная концепция молниезащиты.











Структурная схема зонной концепции показана на рисунке ниже:

Картинка 2 МЗ.jpeg




Зонная концепция представляет собой разделение здания на зоны с различной степенью опасности:


Внешние зоны

  • LPZ 0. Зона, в которой угрозой является неослабленное электромагнитное поле молнии и где внутренние системы могут быть подвергнуты полному или частичному импульсному току молнии. 

LPZ 0 подразделяется на: 

- LPZ 0A. Зона, в которой угрозой является прямой разряд и полное электромагнитное поле молнии. Внутренние системы могут быть подвергнуты полному импульсному току молнии.

- LPZ 0B. Зона, защищенная от прямых разрядов молнии, но где угрозу представляет полное электромагнитное поле молнии. Внутренние системы могут быть подвергнуты частичному импульсному току молнии.


Внутренние зоны (защищенные от прямых разрядов молнии)

  • LPZ 1. Зона, где импульсный ток ограничен распределением тока и изолированием интерфейсов и/или установкой УЗИП на границе зоны. Пространственное экранирование может снизить электромагнитное поле молнии.

  • LPZ 2…n. Зона, где импульсный ток может быть дополнительно ограничен распределением тока и изолированием интерфейсов и/или установкой дополнительных УЗИП на границы зоны. Дополнительное пространственное экранирование может применяться для дальнейшего снижения электромагнитного поля молнии.


 Зоны помогают определить необходимость защитных мероприятий, в частности, устройства и компоненты защиты от токов молнии и импульсных перенапряжений. Составляющими частями зонной концепции молниезащиты являются система внешней молниезащиты (включая систему молниеприемников, токоотводов, систему заземления), система уравнивания потенциалов, пространственное экранирование, защита от импульсных перенапряжений для систем электропитания и систем информационных технологий.

В соответствии с требованиями и нагрузками на устройства защиты от импульсных перенапряжений, они разделены на категории как разрядники тока молнии, ограничители импульсных перенапряжений и комбинированные разрядники.

Самые высокие требования касаются пропускной способности для разрядников тока молнии и комбинированных разрядников, применяемых на границе перехода из молниезащитной зоны 0А в 1 или из 0А в 2. Эти разрядники должны быть способны отвести частичные токи с формой волны 10/350 мкс несколько раз без выхода из строя с целью предотвращения заноса разрушительных частичных токов молнии в электрическую установку здания. На границе перехода из LPZ 0B в 1 или после разрядника тока молнии на границе перехода из LPZ 1 в 2 и выше, применяются ограничители для защиты от импульсных перенапряжений. Их задача состоит в том, чтобы уменьшить остаточную энергию вышестоящей ступени защиты еще больше и ограничить импульсные перенапряжения сгенерированные в самой установке. Описанные выше меры по защите от токов молнии и импульсных перенапряжений на границах перехода молниезащитных зон применяются к системам электропитания и к системам информационных технологий. Все меры, описанные в ЭМС совместимой зонной концепции молниезащиты, помогают обеспечить непрерывную и бесперебойную работу электрических и электронных устройств и установок.

Устройства защиты от импульсных перенапряжений (УЗИП) в основном состоят из управляемых напряжением резисторов (варисторов, супрессорных диодов) и/или искровых разрядников (разряжающих частей). УЗИПы используются для защиты другого электрического оборудования и установок от недопустимо высоких импульсов и /или для организации уравнивания потенциалов.


Специалисты ООО «СТ Солюшн» имеет опыт проектирования, монтажа и поставки оборудования и материалов для систем молниезащиты, заземления и защиты от перенапряжений для различных объектов по всей России.



Наши решенияБольше проектов

Автомобильно-дилерский центр Jaguar-Land Rover
Площадь объекта:40 000 м2
Зерновой терминал грузооборотом 2,5 млн. тонн в год в порту Новороссийска
Расположение:Юг
Торгово-административные комплексы «Магнит» в городах Ульяновск, Ярославль, Элиста, Воскресенск, Кинешма, Шуя, Алексин
Расположение:Северо-Запад
Площадь объекта:15 000 м2
Автомобильно-диллерский центр BMW-Volkswagen
Расположение:Центр
Площадь объекта:41 300 м2
Жилой дом, Московская область
Расположение:Центр
Площадь объекта:11 000 м2
Автоматизация технологических процессов обеспечения пивоваренного производства
Расположение:Центр
Фабрика по производству шоколадных изделий в пос. Чердаклы Ульяновской области
Расположение:Поволжье
Завод гипохлорита натрия
Расположение:Центр
Площадь объекта:120 000 м2
Реконструкция Автомобильно-дилерского центрa Merсedes-Benz
Расположение:Центр
Площадь объекта:10 000 м2
Заказать обратный звонок
Заполните форму обратной связи,
наши менеджеры обязательно с вами свяжутся.
Нажимая «Отправить», Вы даёте согласие
на обработку персональных данных.
Отправить
Заказать обратный звонок
Заполните форму обратной связи,
наши менеджеры обязательно с вами свяжутся.
Нажимая «Отправить», Вы даёте согласие
на обработку персональных данных.
Отправить
Заказать оценку проекта
Заполните форму обратной связи,
наши менеджеры обязательно с вами свяжутся.
Нажимая «Отправить», Вы даёте согласие
на обработку персональных данных.
Отправить
Заказать проект
Заполните форму обратной связи,
наши менеджеры обязательно с вами свяжутся.
Нажимая «Отправить», Вы даёте согласие
на обработку персональных данных.
Отправить
Получить консультацию
Заполните форму обратной связи,
наши менеджеры обязательно с вами свяжутся.
Нажимая «Отправить», Вы даёте согласие
на обработку персональных данных.
Отправить
Отправка успешна!
Спасибо за обращение! Наш менеджер свяжется с вами в ближайшие рабочие часы
Отправка не удалась
Во время отправки запроса произошла ошибка. Пожалуйста, подождите и попробуйте снова через некоторое время или позвоните на мой номер телефона