EARTHING AND LIGHTNING PROTECTION. OVERVOLTAGE PROTECTION
An earthing and lightning protection system is one of the basis components of the facility power system.
Lightning is an ensemble of technical solutions used for protection of the facility from direct impingement of lightning. The lightning protection system provides safety of people, buildings and structures of different purpose, process, engineering and electronic equipment of facilities from direct lightning discharge, as well as from transfer of the electrical current via steel structures and utilities.
Also one of the components of the lightning protection system is a surge protection system. Overvoltage occurs when lighting strikes the ground or items and facilities located near an electrical plant, as well as in case of switching of a high-powered electrical receiver. This protection system is controlled via a surge protection device of different class in different protection areas.
Lightning protection is strongly connected with theearthing system. Earthing is intentional electrical connection of the electrical plant or a set of electrical plans with an earthing device.
Protective earthing is an electrical connection with an earthing unit of steel non-conducting parts, which in normal mode of operation are not under voltage, but may be under voltage in case of an accident. The purpose of the protective earthing is reduction to a safe value of voltage relatively to the ground at steel parts of equipment, which are not under voltage, but may be under voltage, if the insulation of electrical plants is damaged. As a result of short circuit to frame of earthed equipment, effective touch voltage is reduced and, consequently, the current through the body of a person when the person touches the casing of equipment is reduced.
Functional earthing, contrary to protective earthing used to provide safety of people, is designed to guarantee normal operation of electrical devices and units.
An earth lead is a conductor (electrode) or a set of connected steel conductors (electrodes) touching the ground.
A solid-earthed neutral is a neutral of a transformer or generator connected directly or via low resistance to the earthing device.
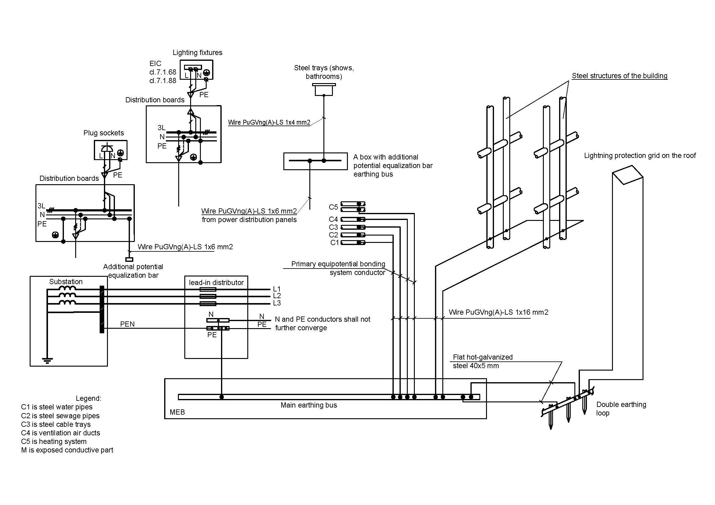
Main components of the earthing and lightning protection system are the following:
-
lightning rods
-
down conductors
-
earthing device
-
surge protection device
Below is a typical structural scheme of an earthing and lightning protection system:

Surge Protection
Pulse overvoltage happening during lightning is caused by direct/near or remote strikes of lightning. Direct and near strikes of lightning are strikes into the building, around it or utilities inside the building conducting electrical current (for example, low voltage power supply lines, telecommunication lines).
To provide continuity of complex power supply and operability of informational technologies systems, even in case of a direct strike of lightning, it is necessary to take measures for protection of electrical and electronic plants and units based on the building lightning protection system. It is important to consider all possible cases of pulse overvoltage. For this purpose a zone lighting protection concept is used.
The structural scheme of the zone concept is indicated in the figure below:
The zone concept is division of the building into zones of different danger level:
External zones
- LPZ 0. A zone, where a danger consists in unmitigated electromagnetic field of lightning and where internal systems may be subject to full or partial pulse current of lightning.
LPZ 0 is divided into:
- LPZ 0A. A zone, where a danger is a direct discharge and full electromagnetic field of lightning. Internal systems may be subject to full pulse current of lightning.
- LPZ 0B. A zone protected from the direct discharge of lightning, but where a danger is a full electromagnetic field of lightning. Internal systems may be subject to partial pulse current of lightning
Internal zones (protected from direct discharge of lightning)
-
LPZ 1. A zone, where pulse current is limited by the distribution of current and isolation of interfaces and/or installation of a surge protection device at the border of the zone. Spatial screening may reduce electromagnetic field of lightning.
-
LPZ 2…n. A zone, where pulse current may be additionally limited by the distribution of current and isolation of interfaces and/or installation of a surge protection device at the border of the zone. Additional spatial screening may be used for further reduction of lightning electromagnetic field.
Zones help in defining the necessity of protective measures, in particular, the necessity in units and components of protection against lighting and in surge protection devices. Component parts of the zone concept of lighting are a system of external lighting (including the system of lightning rods, down conductors, earthing system), equipotential bonding system, spatial screening, surge protection for power supply and information technology systems.
In accordance with the requirements and loads on surge protection devices, they are divided into categories as lightning current charge neutralizers, surge voltage limiters and combined neutralizers.
The highest requirements concern the discharge capacity of lightning current charge neutralizers and combined neutralizers used at the border of lightning protection zone 0A and 1 or 0A and 2. These neutralizers shall be capable to drain partial currents with a wave form of 10/350 µs several times without failure in order to prevent penetration of damaging partial currents into the electrical plant of the building. At the border of LPZ 0B and 1 or after a lightning current charge neutralizer at the border of LPZ 1 and 2 and higher limiters are used for surge protection. Their task is to reduce the residual power of the above stage of protection and limit pulse overvoltage generated inside the plant itself. The described above measures for protection against lightning current and pulse overvoltage at the borders of lightning protection zones are used for electric power supply systems and information technology systems. All measures described in the lightning zone concept with electromagnetic compatibility help to provide a continuous and fail-free operation of electrical and electronic devices and plants.
Surge protection devices comprise mainly voltage-controlled resistors (voltage-depended resistors, suppressible diodes) and/or spark arresters (discharging parts). Surge protection devices are used for protection of other electrical equipment and plants against inadmissibly high pulses and/or for equipotential bonding.
Specialists of ST Solution LLC have experience in design, mounting and delivery of equipment and materials for lightning protection, earthing and surge protection systems for different facilities throughout Russia.